Phong cách ngôi nhà 1 trệt 1 lầu hiện đại
Quan sát tổng thể, chỉ cần những đường nét kiến trúc khỏe khoắn, vuông vắn cũng đủ để lại ấn tượng trong mắt nhiều người. Hệ thống cửa đi cửa sổ làm bằng nhôm Xingfa phối kính chắc chắn, thiết kế với họa tiết độc đáo, đem đến cái nhìn mới lạ, khiến bất kỳ ai khi đi ngang qua cũng phải dừng lại chiêm ngưỡng.

Gia đình anh Sơn – chị Lan có lô diện tích đất 5x20m, diện tích lô đất nhà phố rất phổ biến, anh hướng đến mẫu nhà hiện đại cần nhiều ánh sáng và thoáng mát. Chính đó cũng là động lực mà anh tự tìm hiểu cho mình mẫu nhà hợp lý.

Anh chị đã tìm hiểu thấy mẫu kiến trúc “thiết kế nhà 1 trệt 1 lầu ” mang thương hiệu Nhà Đẹp Phan Thiết – Tdt. Anh chị thấy trong bộ sưu tập có nhiều mẫu nhà hợp lý với gia đình mình nhất. Và quyết định gọi đến Nhà Đẹp Phan Thiết – Tdt nhờ hỗ trợ. Cũng như tư vấn thêm cho anh chị về mẫu nhà hợp lý nhất. Từ đó hướng đến cho mình một không gian tối ưu nhất.

Khi kiến trúc sư Nhà Đẹp Phan Thiết – Tdt xuống tư vấn trực tiếp cho anh Sơn mẫu nhà 1 trệt 1 lầu hiện đại đẹp. Anh chị đã chọn phong cách nhà hiện đại, từ đó cũng được phác họa lên mẫu nhà 2 tầng cơ bản.

Kèm theo đó là sự sắp xếp bố trí trong ngôi nhà 2 tầng một cách cụ thể nhất. Giúp anh và gia đình dễ hình dung về ngôi nhà của mình hơn.

Mái dùng hệ tôn kèo thép hộp, là loại mái tiết kiệm chi phí đầu tư đáng kể cho gia chủ. Phối hợp hệ cửa làm nhựa gỗ tăng độ sắc sảo cho công trình.

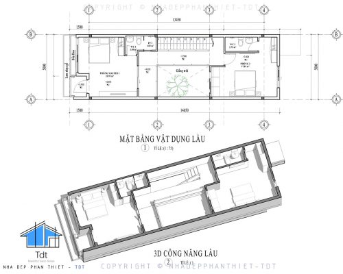
Với diện tích 5x31m khá rộng của gia đình cũng được kiến trúc sư phối hợp như sau:
Tầng trệt : Sân trước, phòng khách, phòng bếp + phòng ăn, vệ sinh, sân sau.
Tầng lầu : 2 phòng ngủ, 2 phòng vệ sinh.


